dot     dot dot
  Planungsgruppe 504    
         
         
 

Bauleitplanung

Die Planungsgruppe 504 hat für eine Vielzahl von Städten und Gemeinden zur Lenkung und Ordnung der jeweiligen städtebaulichen Entwicklung Rahmen-, Flächennutzungs- und Bebauungspläne erarbeitet.

Referenzprojekt

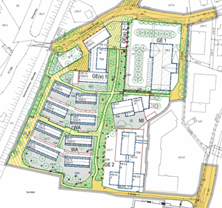
Bebauungsplan Fabrikgelände Lindemann in Tutzing

Modell Bebauungsplan TutzingdotEntwurf Bebauungsplan Tutzing

Modell und Entwurf Bebauungsplan zum Fabrikgelände Lindemann in Tutzing

 

Weitere Referenzprojekte als pdf-Datei zum Downloaden weiter

 
         
         
  © 2018 Planungsgruppe 504   nach oben top